Espacio de ejercitación del Taller de Arquitectura 5: Lenguaje de la Universidad Católica del Norte. Dirigido por los arquitectos Claudio Galeno Ibaceta y Carlos Opazo Carvajal, y la alumna ayudante Carolina Toro.
miércoles, 11 de julio de 2012
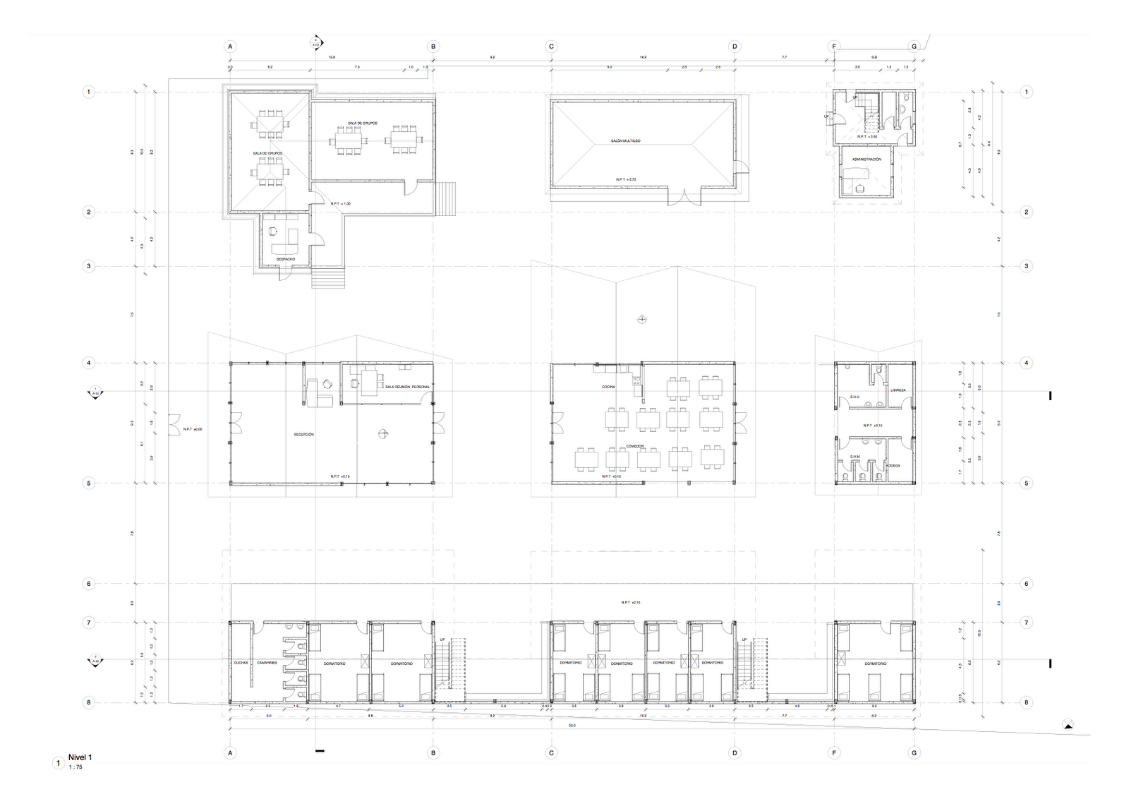
Proyecto Final: Extensión de la Escuela F-103, Gabriela Pereira
No hay comentarios:
Publicar un comentario
Nota: solo los miembros de este blog pueden publicar comentarios.
No hay comentarios:
Publicar un comentario
Nota: solo los miembros de este blog pueden publicar comentarios.